Trilocale in vendita

Brescia, Via Repubblica Argentina - Zona Via Cremona
€ 159.000
3 locali 3 locali
88 Mq 88 Mq
1 bagno 1 bagno

Trilocale in vendita

Brescia, Via Repubblica Argentina - Zona Via Cremona

Descrizione annuncio

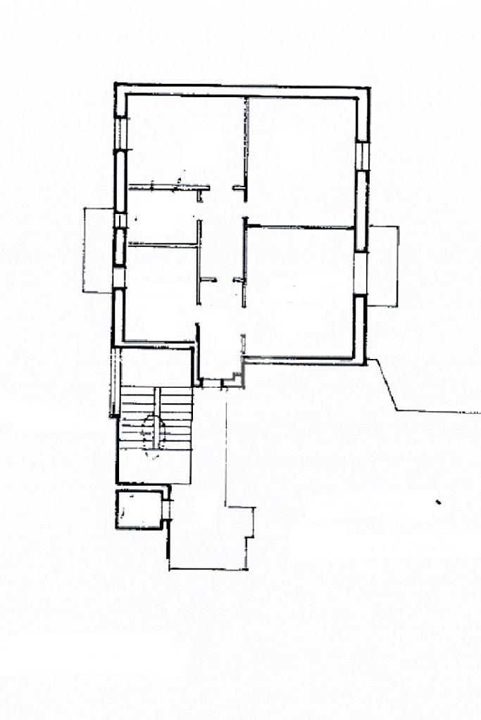
Proponiamo in Via Repubblica Argentina, traversa interna di Via Cremona, appartamento posto al terzo piano servito da ascensore in una palazzina completamente ristrutturata nel 2025.

La soluzione è composta da un ingresso che divide gli ambienti della zona giorno, a sinistra la luminosa cucina separata con accesso al primo balcone esposto ad est a destra un ampio soggiorno con anch’esso balcone esposto ad ovest.

Il corridoio ci conduce alle due camere da letto matrimoniali esposte rispettivamente a Est ed Ovest, ed il bagno finestrato con vasca.

Completano l’appartamento al piano -1 una cantina ed un box auto singolo.

L'immobile si trova all'interno di un condominio signorile e ben abitato dove a Dicembre 2025 è stato rifatto il tetto, la facciata con il cappotto, le scale interne, l’ascensore ed i balconi.

L'appartamento, si presenta con infissi in doppio vetro in PVC, gli impianti sono in stato originale e pavimenti in marmo, è presente il teleriscaldamento con termovalvole sui caloriferi.

Attualmente l’appartamento è affittato gli inquilini hanno già comunicato il rilascio entro il mese di Giugno.

Mostra tutto

Nelle vicinanze

Trasporto pubblico Trasporto pubblico
Volta
Volta
680 m
Lamarmora
Lamarmora
890 m
stazione di Brescia
stazione di Brescia
1,3 Km
Via Cremona n 178
Via Cremona n 178
80 m
Via Cremona n 284 (Sperimentale)
Via Cremona n 284 (Sperimentale)
140 m
Ricariche auto elettriche Ricariche auto elettriche
A2A San Zeno
390 m
A2A BS Brescia San Zeno
610 m
A2A Parcheggio Kennedy
750 m
A2A BS Via Sostegno
1,0 Km
A2A BS Green Energy Point "Il Metano"
1,2 Km
Scuole Scuole
Istituto Comprensivo Rinaldini Sud 3
480 m
Liceo Scientifico Statale Nicolò Copernico
710 m
Liceo Scientifico Statale Leonardo
740 m
Scuole
770 m
Istituto di Istruzione Superiore Statale Camillo Golgi
1,3 Km
Farmacia Farmacia
Farmacia Bravi
360 m
Farmacia Austoni
410 m
Farmacia di via Volta
540 m
Farmacia Fiorentini
840 m
Parafarmacia BewellPharma
970 m
Ospedali Ospedali
Fondazione Poliambulanza Istituto Ospedaliero
1,1 Km
Ospedale Sant'Orsola
1,4 Km
Pilastroni
1,8 Km
Clinica San Camillo
2,0 Km
Ospedale dei Bambini Ronchettino
2,6 Km
Supermercati Supermercati
Simply
380 m
Esselunga
1,1 Km
Prix
1,2 Km
COOP
1,3 Km
to.market
1,3 Km
Negozi Negozi
Il forno di via Cremona
310 m
Meraglino
560 m
Lekkerland
560 m
Negozi
750 m
Forneria Fappani
1,3 Km
Bar Bar
Green Cafè
1,0 Km
Bar
1,1 Km
Bar Pi Greco
1,1 Km
Bar Pierrot
1,1 Km
Lime
1,1 Km
Ristoranti Ristoranti
Ristorante Pizzeria Laguna Blu
370 m
Mi
440 m
Antica Roma
520 m
Trattoria Alpino
580 m
Pizzeria Linus
620 m
Mostra tutto

Caratteristiche

Rif.:
61188624
Piano:
3 di 4 con ascensore (Piano medio)
Box:
1
Balconi:
2
Camere da letto:
2
Arredamento:
Assente
Mostra tutto
Prezzo Prezzo
€ 159.000
Rata mutuo Rata mutuo
€ 742 / mese
Spese annue Spese annue
€ 2.000
Proponi il tuo prezzoProponi il tuo prezzo

Altre caratteristiche

Classe Energetica

A1
A1
A1
A1
A1
A1
A1
A1
A1
EP globale non rinnovabile:
196.16 kW h/m² anno
EP invernale del fabbricato:
EP estiva del fabbricato:
Anno di costruzione:
1960
Riscaldamento:
Centralizzato
Tipo impianto:
A radiatori
Tipo alimentazione:
Metano

Ti interessa visionare l'immobile?

Fissa un appuntamento  Fissa un appuntamento

Richiedi informazioni

Clicca su Leggi per aprire l'informativa
* Questi campi sono obbligatori

Calcola il tuo mutuo

Semplice e senza impegno
Anticipo

( % )
Mutuo

( % )

pochi semplici passi

inserisci i tuoi dati
Questionario completato
Grazie per aver richiesto un appuntamento senza impegno con un nostro Consulente del Credito e Assicurativo.

Hai inserito correttamente tutti i dati necessari e a breve riceverai una e-mail con un link da convalidare per inviare i tuoi dati.
Affiliato
Porta Cremona Srl
Via Della Volta, 4/A 25124 Brescia (BS)

Il nostro staff


  • Claudio Dancelli
    Affiliato

  • Alexandra Ferrarini Domenici
    Affiliata

  • Samuele Ventura
    Collaboratore

  • Roberto Vicentino
    Responsabile
Via Della Volta, 4/A 25124 Brescia (BS)
Zona: Brescia Via della Volta
Mostra su mappa
Affiliato
Porta Cremona Srl
Via Della Volta, 4/A 25124 Brescia (BS)

2026 Tecnocasa Franchising S.p.A. - P. IVA 08365160152 - Via Monte Bianco 60/A 20089 Rozzano (MI). Ogni agenzia ha un proprio titolare ed è autonoma. Privacy policy | Policy utilizzo | Cookie policy